CIVIL PROJEKT
Projektiranje i stručni nadzor u graditeljstvu
Specijalizirani smo za izradu projekta građevinskih konstrukcija, te pružamo usluge u provođenju energetske obnove, energetskog certificiranja i stručnog nadzora.
Najbolja inženjerska rješenja
Bez obzira na složenost vašeg projekta, možete se osloniti na nas za profesionalno pružanje usluga pri izradi građevinskih projekata.
Odabrali ste uslugu?
Naše reference
S naglaskom na kvaliteti i stručnosti, ističemo se po impresivnom projektima koji jasno pokazuje našu sposobnost pružanja vrhunskih usluga.
Projekt konstrukcije višestambene zgrade u Rogoznici
Godina: 2026.
Naziv objekta: Višestambena zgrada u Rogoznici
Veličina objekta: 540m2
Opis:Projekt konstrukcije višestambene zgrade u Rogoznici
Projekt konstrukcije višestambena zgrada sa 6 stambenih jedinica u Rogoznici
Godina: 2026.
Naziv objekta: Višestambena zgrada sa 6 stambenih jedinica u Rogoznici
Veličina objekta: 465m2
Opis:Projekt konstrukcije višestambene zgrade sa 6 stambenih jedinica u Rogoznici
Izrada objekta adaptacije višestambene zgrade u Šibeniku
Godina: 2026.
Naziv objekta: Višestambena zgrada u Šibeniku
Veličina objekta: 2400m2
Opis:Izrada objekta adaptacije višestambene zgrade u Šibeniku
Projekt konstrukcije čelične hale u Kistanjama
Godina: 2026.
Naziv objekta: Čelična hala u Kistanjama
Veličina objekta: 120m2
Opis:Projekt konstrukcije čelične hale u Kistanjama
Stručni nadzor obiteljske kuće u Tisnom
Godina: 2026.
Naziv objekta: Obiteljska kuća u Tisnom
Veličina objekta: 194m2
Opis:Pružanje usluga stručnog nadzora obiteljske kuće u Tisnome
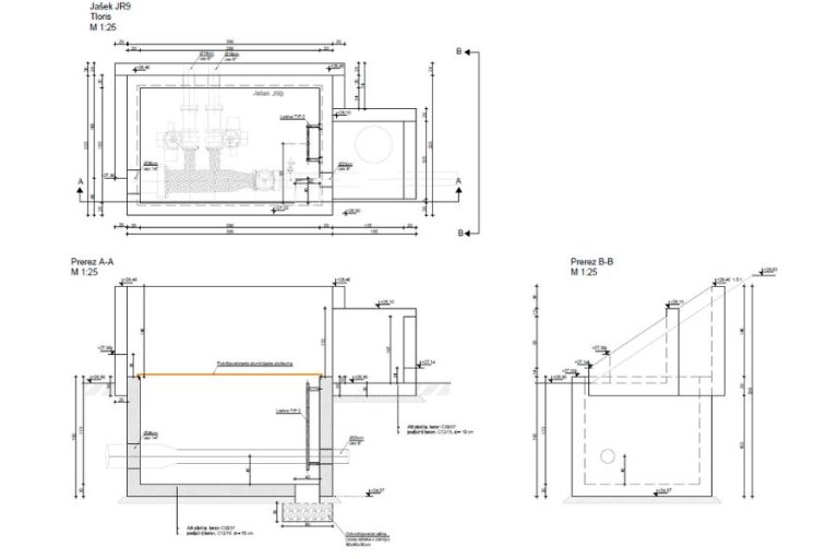
Izrada izvedbenog projekta šahtova hidrantske mreže
Godina: 2025.
Naziv objekta: Obiteljska kuća u Rogoznici
Veličina objekta: 102,12m2
Opis:Izrada Projekta konstrukcije obiteljske kuće
Obiteljska kuća u Sevidu s bazenom
Godina: 2025.
Naziv objekta: Obiteljska kuća u Rogoznici
Veličina objekta: 102,12m2
Opis:Izrada Projekta konstrukcije obiteljske kuće
Projekt konstrukcije u luci Ploče
Godina: 2025.
Naziv objekta: Obiteljska kuća u Rogoznici
Veličina objekta: 102,12m2
Opis:Izrada Projekta konstrukcije obiteljske kuće
Kontinuiranim usavršavanjem te korištenjem BIM alata za modeliranje konstrukcija nudimo kvalitetnu uslugu izrade građevinskih projekata.
Zadovoljstvo investitora naš je primarni cilj
Naši partneri
U suradnji s našim partnerima pružamo usluge iz djelokruga arhitektonske, strojarske, elektrotehničke i geodetske struke.



Trebate jednu ili više naših usluga?
Tu smo za Vas, slobodno nas kontaktaktirajte, zajedno ćemo pronaći rješenje za Vaše potrebe!