Godina:2025.
Naziv objekta: Projekt postojećeg stanja čelične konstrukcije platforme na vagonskom punilištu
Veličina objekta:
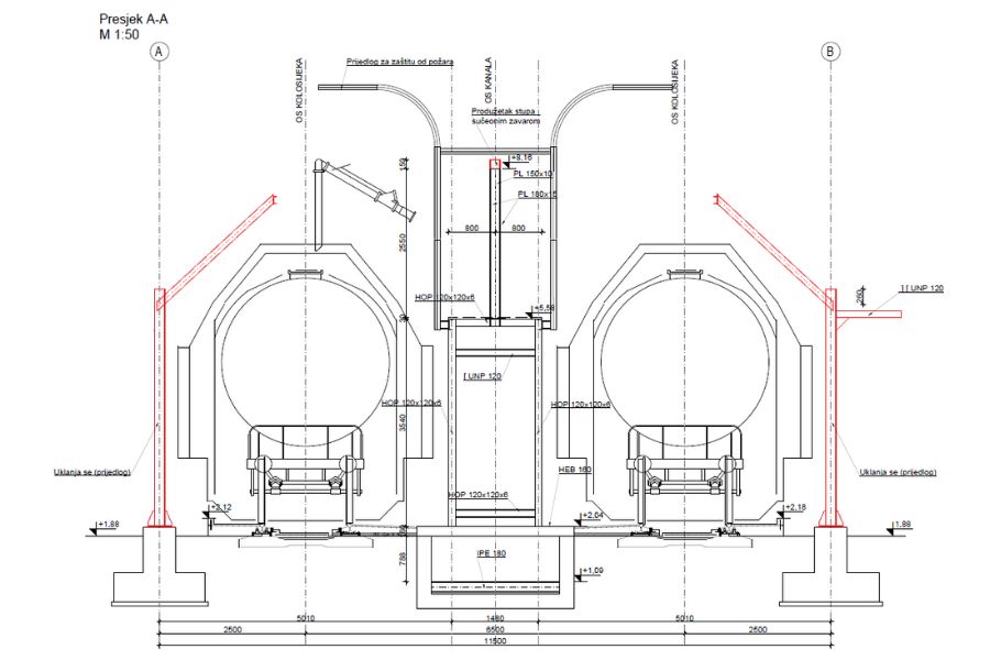
Opis: Izrada projekta postojećeg stanja čelične konstrukcije platforme s prijedlogom sanacijskih mjera temeljenih na vizualnom snimanju i preliminarnoj analizi u luci Ploče.
Trebate jednu ili više naših usluga?
Tu smo za Vas, slobodno nas kontaktaktirajte, zajedno ćemo pronaći rješenje za Vaše potrebe!
Adresa
Velimira Škorpika7A
22000 Šibenik
Dokumenti