Godina:2024.
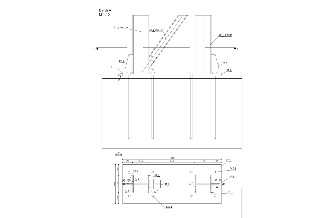
Naziv objekta: Nadstrešnica u Splitu
Težina objekta: 22,3 t
Opis: Izrada izvedbenog projekta i radioničkih nacrta nadstrešnice za postavljanje fotonaponskih ploča.
Trebate jednu ili više naših usluga?
Tu smo za Vas, slobodno nas kontaktaktirajte, zajedno ćemo pronaći rješenje za Vaše potrebe!
Adresa
Velimira Škorpika7A
22000 Šibenik
Dokumenti